Mimarlık
PROJELER
OFİS
İLETİŞİM
ENG
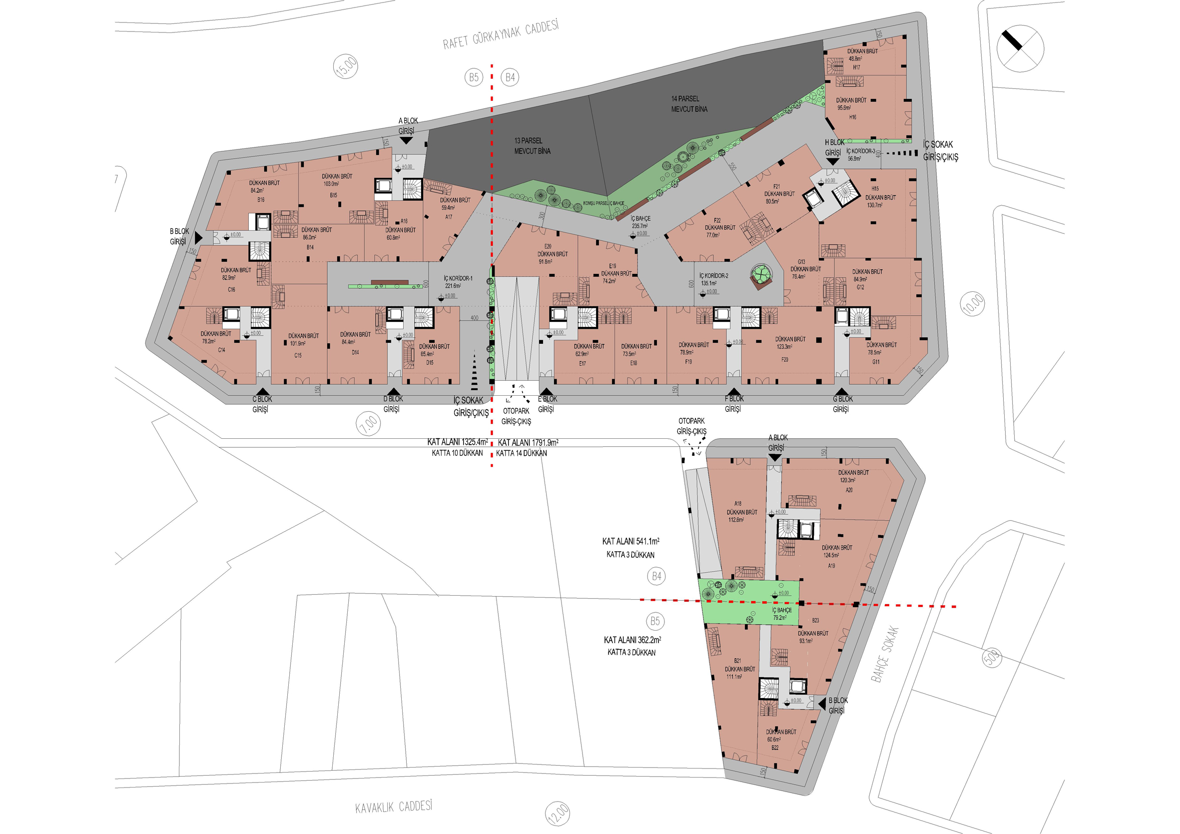
BİGA KONUT
TİP : Konut-Ticari
DURUM : Konsept Proje
İŞVEREN : Aykar İnşaat
LOKASYON : Biga / Çanakkale
ARSA ALANI : 4.330 m²
İNŞAAT ALANI : 28.090 m²
TARİH : 2017
EKİP : Mehtap Emanet, Özge A.Lokumcu, Volkan Lokumcu